THE
VILLAGE
OSAKA

Premium Space,
Smart Solution

挑戦を加速させる、
次世代オフィス

THE VILLAGE OSAKAは堺筋本町駅徒歩2分、セットアップ・曜日貸しオフィス。

ハイグレードで洗練された空間が、ビジネスの成長を促進します。

リモートワーク主軸のワークスタイルから、本社機能を置くための本格的なオフィスまで、
初期コストを抑えながら、あなたの理想の働き方と成長を叶える次世代のオフィスです。

Value価値

  • 初期コストの削減

    従来の不動産商習慣である、敷金10カ月、内装工事期間を無くし、入居者様の初期コストを削減します。

  • ハイグレードな空間と充実した共用部

    1Fラウンジ、2Fの貸会議室やWebブースなどの、共用部はすべて無料で利用可能です。

  • イノベーションの種になる自律型コミュニティ

    THE VILLAGE OSAKAは単なるオフィスの集合体ではなく、価値観を共有する入居者が繋がり、自律的なコミュニティを形成する場です。互いの成長を支え合うネットワークこそが、ここならではの価値です。

  • 環境に配慮したサステナブルなエネルギーや素材を使用

    THE VILLAGE OSAKAは100%再生可能エネルギーを使用し、リサイクル素材の活用で環境負荷を低減しています。サステナブルな職場環境が、働く人々の意識を高めます。

Feature特徴

  • よくある課題

    オフィスにかかるコストを抑え削減したリソースを事業に使いたい

    通常のオフィスでは敷金や内装工事費に加え、設計や什器配置の手間・時間・費用が必要です。退去時も原状回復工事が必要となり、入退去時のコストが大きく膨らみます。

    >

    セットアップオフィスでオフィス開設に
    かかるコストもリソースも削減

    THE VILLAGE OSAKAなら内装費はオーナー負担、敷金ゼロ(保証会社利用時)、原状回復工事も不要。初期投資を最小限に、効率的なレイアウトのオフィス空間を利用できます。

  • よくある課題

    顧客や採用者に印象の良いハイグレードなオフィスに移転したい

    ビジネスの成長には、取引先からの信頼と優秀な人材の確保が不可欠です。オフィスは企業の顔となる存在ですが、企業の魅力を充分にアピールできていない場合も多くあります。

    >

    モダンでラグジュアリーなデザイン空間で
    顧客や採用者の印象をUP

    ハイグレードな空間デザインと設備を実装。クライアントに好印象を与え、企業への信頼感を高めるとともに、採用活動にも効果が期待出来ます。

  • よくある課題

    働き方に合ったオフィスでスペース効率を上げたい

    週に1〜2回しか使わないミーティングスペースや出社日のためだけに、常に固定費を払い続けるのは非効率的であり、リモートワーク中心の企業にとって大きな課題です。

    >

    フレキシブルな「曜日貸し」で
    働き方に最適化したオフィス活用を

    週に1回だけ社員が集まる日や、月に数回の利用のために、特定の曜日だけ専有利用できるオフィスプラン。月額賃料は通常の1/5程度に抑えられ、必要な時だけ使えるスマートなオフィス活用が可能です。

THE VILLAGE OSAKAで、新しいワーク
スタイルを実現しませんか?

初期費用を抑えながら、ハイグレードなオフィス環境
を手に入れましょう

Design Concept

Innovator’s Campus

働く、集う、交流する。革新的な思考と洗練された空間美が調和する
プレミアムな創造拠点。
人と知が出会い、化学反応から革新的なビジネスが生まれます。
Innovator's Campusは、未来を創る企業を支え、ビジネスに豊かさと可能性をもたらします。

Utility 共用部

1Fラウンジスペース

1F エントランス

企業の第一印象を決定づける1階エントランスには、明るく上質な照明とハイグレードな内装を完備。

1F ラウンジ

1階ラウンジは、洗練されたインテリアとカフェのような快適な座席で開放感あふれる空間。

1F ラウンジ

居心地の良い、リラックスした雰囲気の中で入居企業同士の交流を促進します。

貸会議室

入居企業が利用できる会議室をご用意。大型会議室には、プロジェクターを完備。予約システムで簡単に利用可能です。

webブース

オンライン会議の実施のための完全個室のフォンブース。電源やWi-Fi、空調も完備しており、快適な空間で会議に集中することができます。予約システムで簡単に利用可能です。

Setup Office セットアップオフィスとは?

初期費用を抑えてすぐに使える、内装・什器付きの新しいかたちのオフィス

セットアップオフィスとは、内装費用はビルオーナ負担、敷金はゼロ(保証会社を使用した場合)、
原状回復工事も不要(退去時費用は協議)の新しい賃貸借型のオフィスです。

セットアップオフィスと通常オフィスの費用差額イメージ

Office Type オフィスタイプ

  • フルセットアップ
  • ハーフセットアップ
  • 曜日貸し

フルセットアップオフィス

すべての設備・什器が揃った即入居可能なオフィス

面積
37.53坪
想定入居人数
15名程度
敷金
不要(保証会社利用時)
内装費
不要
設備
  • 椅子
  • 会議室

ハーフセットアップオフィス

会議室は什器完備、執務室は自由にレイアウト可能な家具なし空間

面積
38.78坪〜
想定入居人数
15名程度
敷金
不要(保証会社利用時)
内装費
不要
設備
  • 椅子
  • キッチン
  • 会議室

※執務室には家具が付属しておりません。必要に応じてご用意ください

曜日貸しオフィス

すべての設備・什器が揃っており即入居可能、かつ各曜日毎に各テナントが専有利用いただける賃貸借型オフィス

面積
40.66坪
想定入居人数
15名程度
敷金
不要(保証会社利用時)
内装費
不要
設備
  • 椅子
  • 収納
  • 会議室

Floor Map フロアマップ

  • 1F
  • 2F
  • 3F
  • 9F
  • 10F
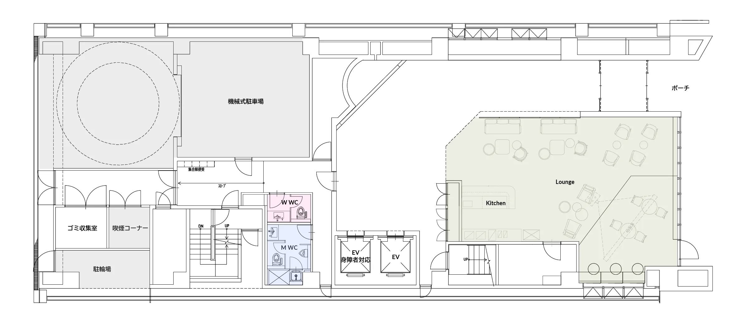
ラウンジカフェ
1Fフロアマップ
フルセットアップオフィス / 曜日貸しオフィス / ミーティングルーム
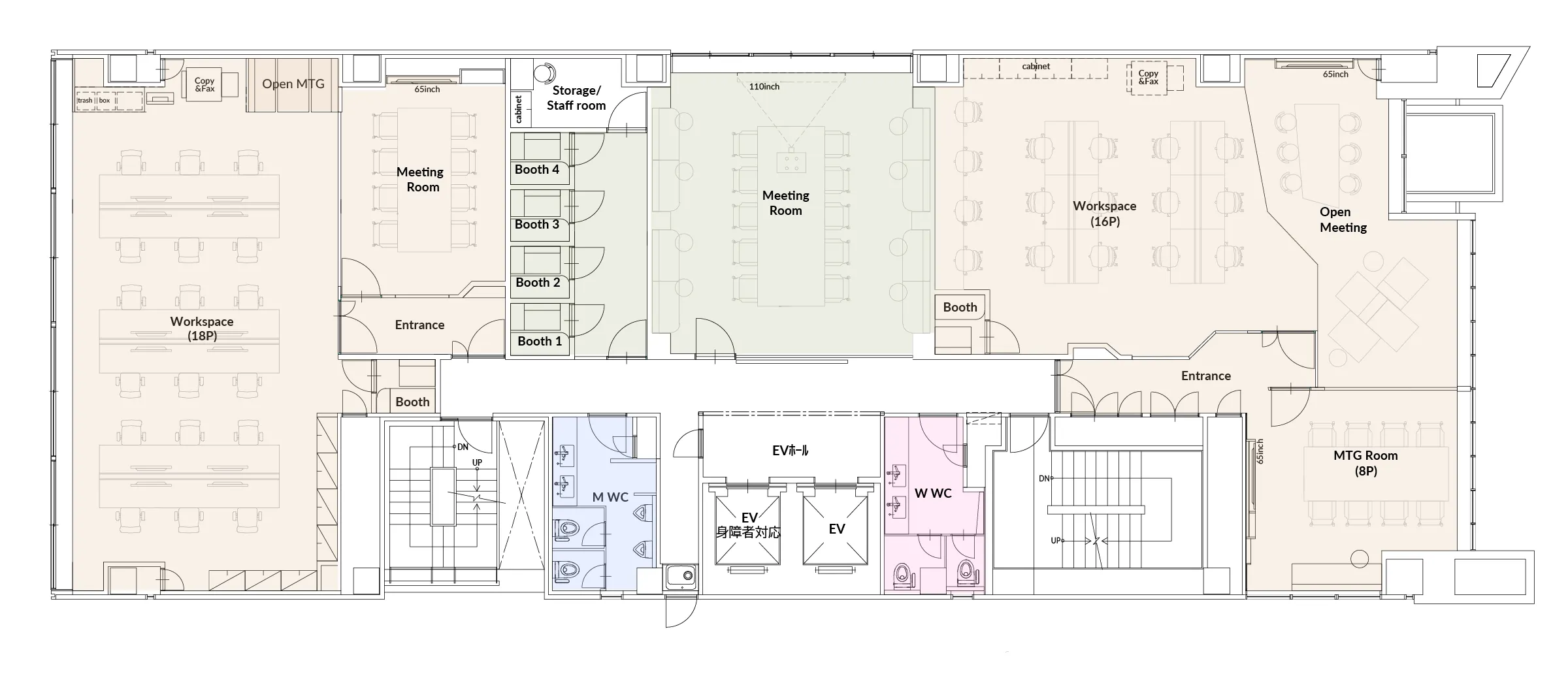
2Fフロアマップ
ハーフセットアップオフィス / キッチン
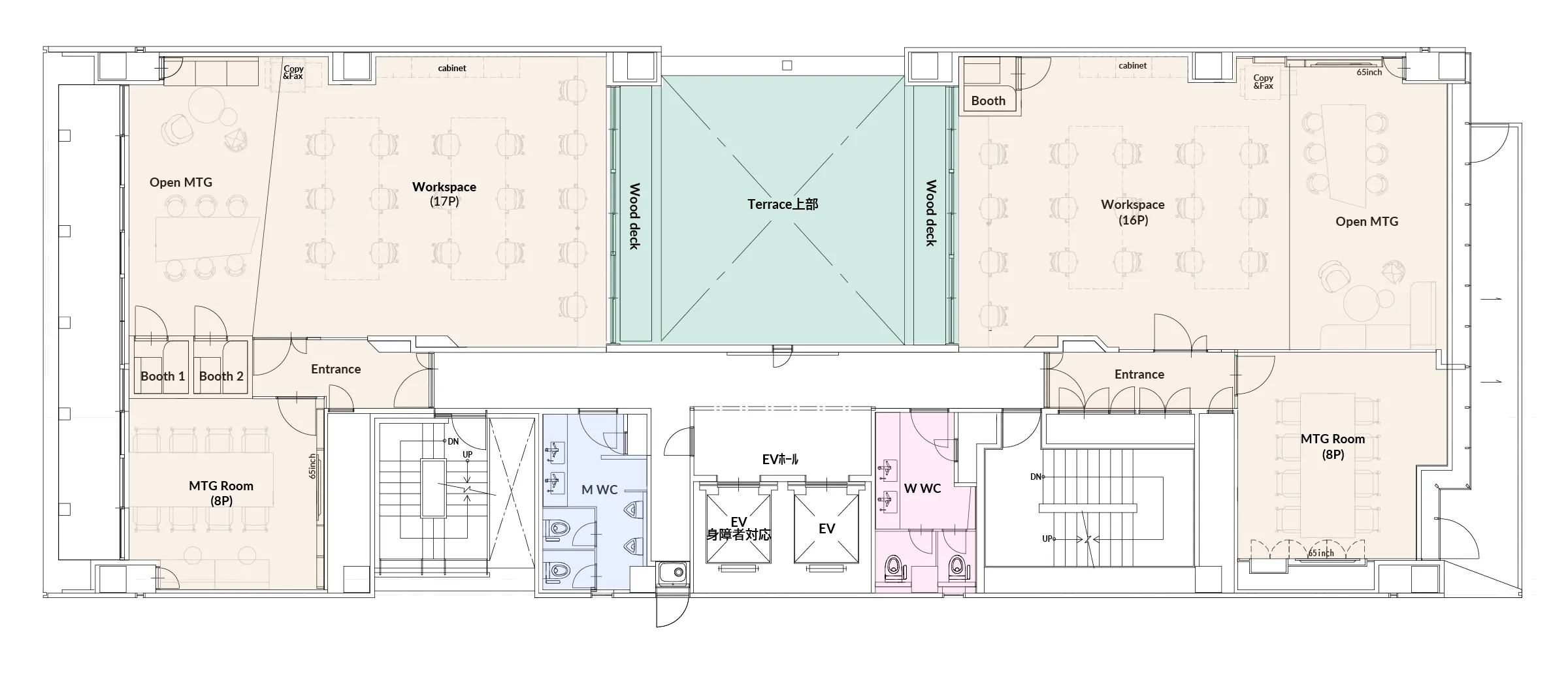
3-7Fフロアマップ
ハーフセットアップオフィス / キッチン/ テラス
9Fフロアマップ
ハーフセットアップオフィス
10Fフロアマップ

THE VILLAGE OSAKAで、新しいワーク
スタイルを実現しませんか?

初期費用を抑えながら、ハイグレードなオフィス環境
を手に入れましょう

Access アクセス

外観イメージ
名称
THE VILLAGE OSAKA
住所
大阪府大阪市中央区本町一丁目6番地17号
交通
大阪メトロ堺筋線・中央線 堺筋本町駅徒歩2分

Architectural overview 物件概要

物件名
THE VILLAGE OSAKA
所在地
大阪府大阪市中央区本町一丁目6番地17号
アクセス
堺筋本町駅徒歩2分
敷地面積
475.36㎡(143.80坪)
延床面積
3,594.58㎡(1,087.36坪)
用途地域
商業地域
竣工年
1996年
駐車場
機械式20台
駐輪場
天井高
2,500mm
床仕様
OAフロア(100mm)
エレベーター
2台
空調
個別空調
床荷重
300kg/㎡
警備
機械警備

Contact お問い合わせ

  • 資料請求
  • 問い合わせ

FAQ よくあるご質問

セットアップオフィスとは何ですか?
内装費用はビルオーナー負担、敷金はゼロ(保証会社利用時)、原状回復工事も不要の新しい賃貸借型のオフィスです。入退去にかかるコストを大幅に削減することが出来ます。
曜日貸しオフィスはどのように予約・利用するのですか?
定期賃貸借契約で特定の曜日(例:毎週月曜日)に専有利用できるプランです。複数曜日の契約も可能です。
内装のカスタマイズは可能ですか?
ハーフセットアップオフィスでは一部カスタマイズが可能です。詳細はお問い合わせください。
館内に飲食スペースはありますか?
1Fラウンジスペースをご利用ください。
ラウンジスペースには、コーヒーマシンをご用意しております。

THE VILLAGE OSAKAで、新しいワーク
スタイルを実現しませんか?

初期費用を抑えながら、ハイグレードなオフィス環境
を手に入れましょう

資料請求をする